保溫閘閥 |
| 型號: | BZ41W | 口徑: | DN15-DN300 |
| 壓力: | 1.6MPA | 材質: | WCB/304/316 |
保溫閘閥主要用于石油、化工、冶金、制藥等各類系統中,該閥門的夾套焊裝于閥門的兩法蘭之間,閥門的側面、底部設置有夾套的連接口,夾套中可自由地流過蒸汽或其它熱的保溫介質,確保粘稠介質可順暢地流過閥門。
一、執行標準
設計與制造:GB12234
法蘭尺寸:JB/T79 GB9113
壓力溫度:GB9131
結構長度:GB12221
對焊連接尺寸:-
檢驗與試驗:GB13927
保溫閘閥具有以下優點:
1、流體阻力小 , 密封面受介質的忡刷和侵蝕小。
2、開閉較省力。
3、介質流向不受限制 , 不擾流、不降低壓力。
4、形體簡單 , 結構長度短,制造工藝性好,適用范圍廣。

性能規范
|
型號 |
公稱壓力 |
試驗壓力 |
適用溫度(℃) |
適用介質 |
保溫套壓力 | |
|
殼體 |
密封 | |||||
|
BZ41W-16P(R) |
1.6 |
2.4 |
1.8 |
≤350 |
NITRIC ACID |
≤1.0 |
|
硝酸類 | ||||||
|
BZ41W-25P(R) |
2.5 |
3.8 |
2.8 |
≤350 |
NITRIC ACID |
≤1.0 |
|
硝酸類 | ||||||
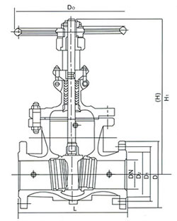
主要外形尺寸和連接尺寸(mm)
|
型號 |
壓力 |
公稱通徑 DN |
尺寸(mm) | ||||||||||||
|
L |
D |
D1 |
D2 |
b |
z-d |
H |
D0 | ||||||||
|
1.6 |
40 |
200 |
160 |
125 |
100 |
18-3 |
4-18 |
310 |
200 | |||||
|
50 |
250 |
180 |
145 |
120 |
18-3 |
4-18 |
358 |
240 | |||||||
|
65 |
265 |
195 |
160 |
135 |
20-3 |
8-18 |
373 |
240 | |||||||
|
80 |
280 |
215 |
180 |
155 |
20-3 |
8-18 |
435 |
280 | |||||||
|
100 |
300 |
245 |
210 |
185 |
22-3 |
8-18 |
500 |
300 | |||||||
|
125 |
325 |
280 |
240 |
210 |
24-3 |
8-23 |
614 |
320 | |||||||
|
150 |
350 |
335 |
295 |
265 |
26-3 |
12-23 |
674 |
360 | |||||||
|
200 |
400 |
405 |
355 |
320 |
30-3 |
12-25 |
818 |
400 | |||||||
|
250 |
450 |
460 |
410 |
375 |
30-4 |
12-25 |
969 |
450 | |||||||
|
300 |
500 |
520 |
470 |
435 |
34-4 |
16-25 |
1145 |
560 | |||||||
|
2.5 |
40 |
200 |
160 |
125 |
100 |
20-3 |
4-18 |
358 |
240 | |||||
|
50 |
250 |
180 |
145 |
120 |
22-3 |
8-18 |
373 |
240 | |||||||
|
65 |
265 |
195 |
160 |
135 |
22-3 |
8-18 |
435 |
280 | |||||||
|
80 |
280 |
230 |
190 |
160 |
24-3 |
8-18 |
500 |
300 | |||||||
|
100 |
300 |
270 |
220 |
188 |
28-3 |
8-15 |
614 |
320 | |||||||
|
125 |
325 |
300 |
250 |
218 |
30-3 |
8-25 |
674 |
360 | |||||||
|
150 |
350 |
360 |
310 |
278 |
34-3 |
12-25 |
818 |
400 | |||||||
|
200 |
400 |
425 |
370 |
332 |
36-3 |
12-30 |
969 |
450 | |||||||
|
250 |
450 |
485 |
430 |
390 |
40-4 |
12-30 |
1145 |
560 | |||||||
|
300 |
500 |
550 |
490 |
448 |
40-4 |
16-34 |
1145 |
640s | |||||||





